About Us
Services
Projects
Contact
Blog
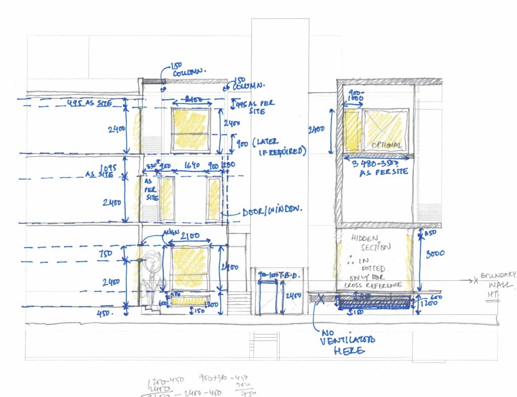
Residence Yash Bisht
Client Name: Mr. Yash Bisht
Area: 12,500 sq. ft.
Type: Residential
Location: Noida Sector 73, Uttar Pradesh